Обяви За нас Контакти
Продава ПАРЦЕЛ
град София, Княжево
475 500 €
929 997.17 лв.

(1 500 €, 2 933.75 лв./m2)
Не се начислява ДДС
Публикувана в 10:34 на 2 февруари, 2026 год.
Обявата е посетена 279 пъти.
Площ:
317 m2
Регулация:
ДА
Ток:
ДА
Вода:
ДА

Описание на имота:


Отлично местоположение, близо до търговски център Княжево, магазини (Била, Лидл), училищe, спирки на градския транспорт, удобни транспортни връзки към всички райони на София;
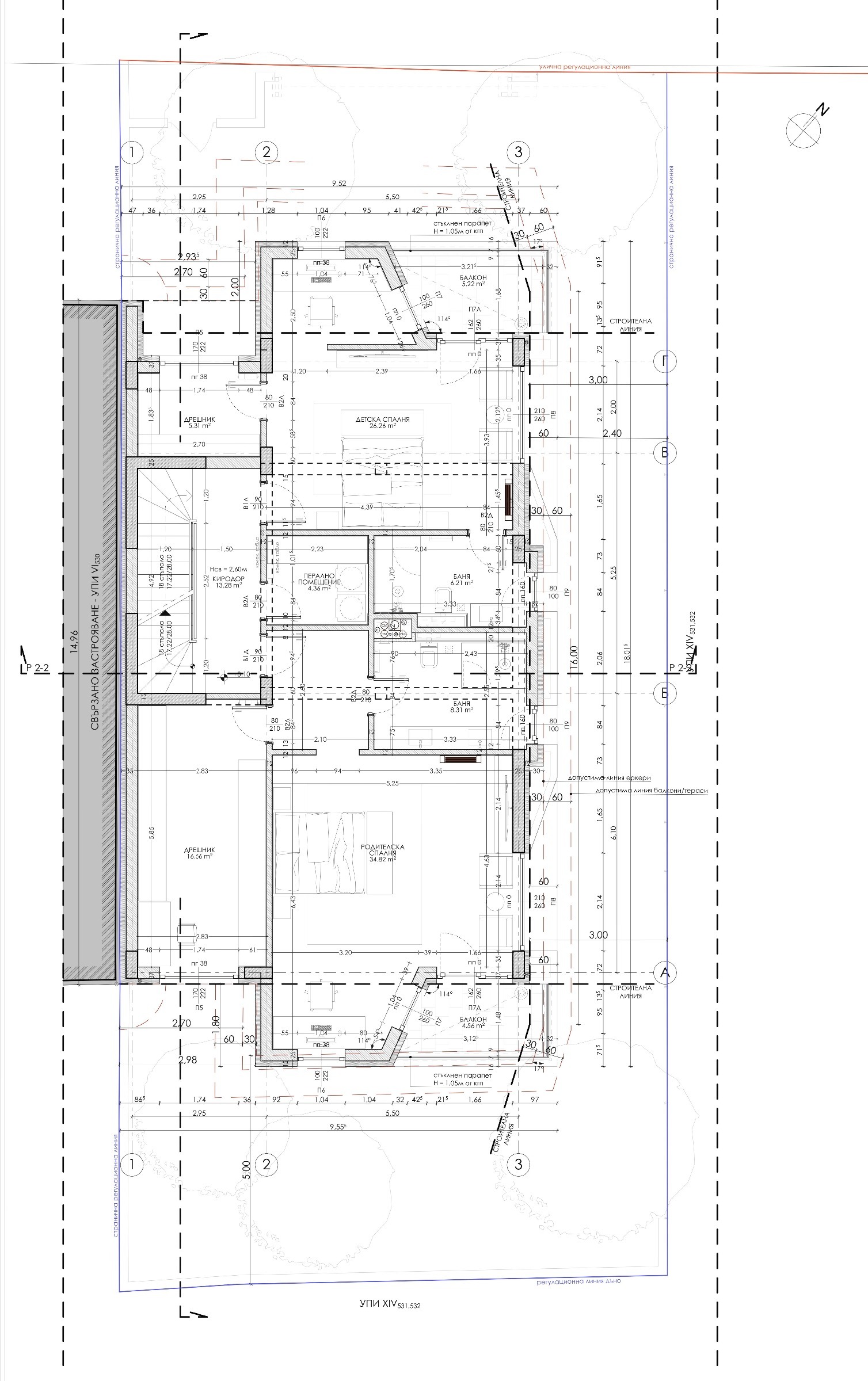
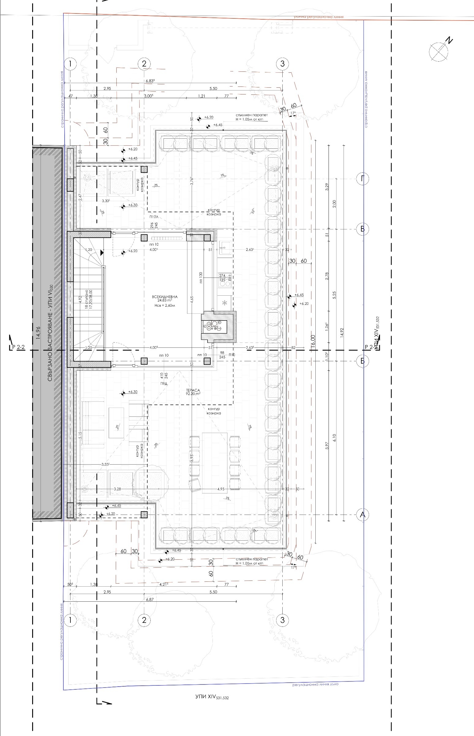
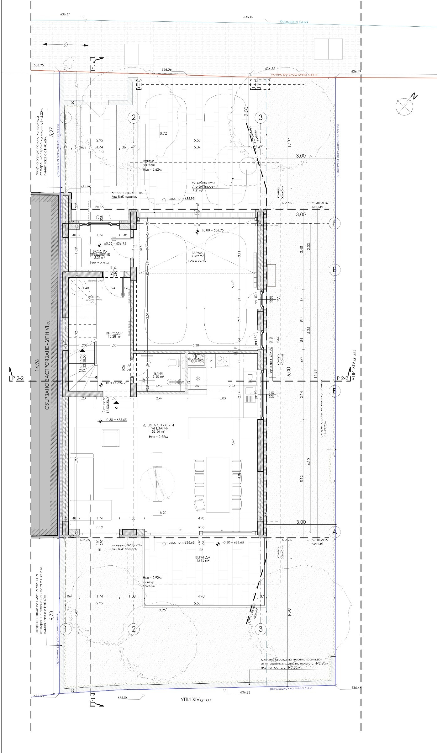
317 кв.м., равен, с голямо лице на улицата, застроено с хубави къщи наоколо, заедно одобрен проект за къща с площ от 407 кв.м.
За подробности и огледи: 0887104488, Галя Цветкова
Особености
Виза
За жил.строителство
За контакт:
0887104488
Брокер:
Галя Цветкова
0887104488
Още оферти от брокера: Продава | Дава под наем | Купува | Наема
Агенция:
ДЖИ ЕМ ТИ ИНВЕСТ
0887104488
ДЖИ ЕМ ТИ ИНВЕСТ logo
Медал за прослужено време
В imot.bg от 2009 г.
gmtinvest.imot.bg
Адрес:
област София, гр. София, Медицинска академия
http://gmtinvest.imot.bg
ИЗПРАТИ ЗАПИТВАНЕ
ИЗПРАТИ ЗАПИТВАНЕТО

Продава ПАРЦЕЛ
град София, Княжево
Обява: 1r177002124081530

475 500 €
929 997.17 лв.
(1 500 €, 2 933.75 лв./m2)

Не се начислява ДДС
ЗАПАЗИ ОБЯВАТА

Местоположение: град София, Княжево

Допълнителни данни за имотите в района и сравнение с други райони

Покажи

Период

и 2 месеца

* Средните цени са определени чрез медианна стойност